thank you
Your email has been sent.
Sunhill Marketplace 10455 Sunland Blvd 1,400 - 54,272 SF of Retail Space Available in Sunland, CA 91040



Highlights
- Anchored by Ralphs for over 50 years
- Center Recently Fully Remodeled
- Anchored by Ralphs and Ross Dress for Less, ensuring consistent customer traffic.
- Outstanding and irreplaceable freeway access with on/off ramps to/from Sunland Blvd
- Prime freeway visibility with a new pylon sign
- Located in a densely populated trade area with strong consumer demand.
Space Availability (5)
Display Rental Rate as
- Space
- Size
- Term
- Rental Rate
- Rent Type
| Space | Size | Term | Rental Rate | Rent Type | ||
| 1st Floor | 1,400-6,840 SF | Negotiable | Upon Request Upon Request Upon Request Upon Request Upon Request Upon Request | Negotiable | ||
| 1st Floor | 1,400-4,660 SF | Negotiable | Upon Request Upon Request Upon Request Upon Request Upon Request Upon Request | Negotiable | ||
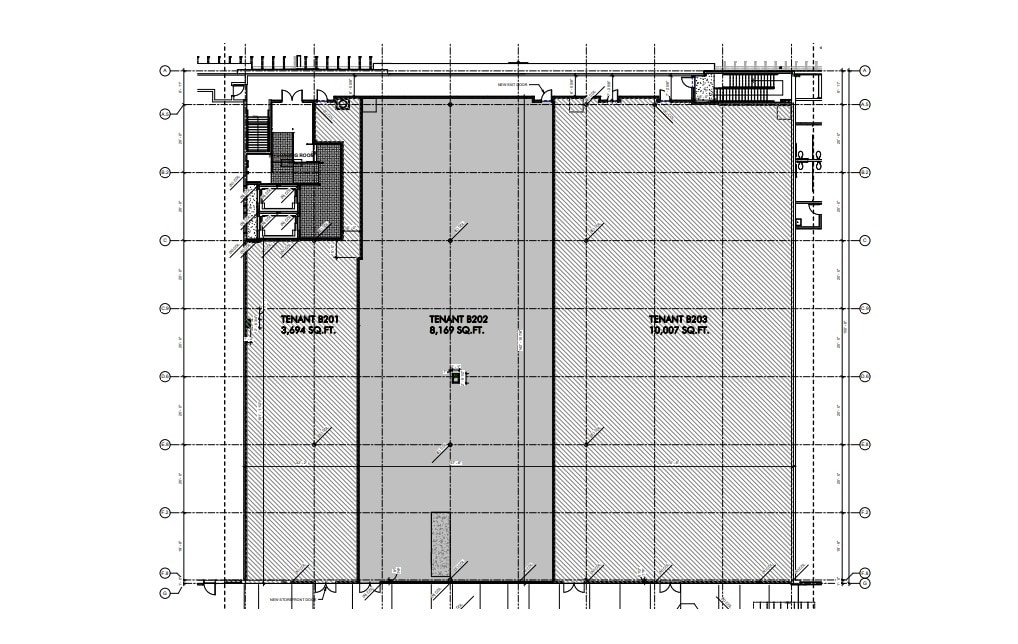
| 1st Floor | 10,000-22,040 SF | Negotiable | Upon Request Upon Request Upon Request Upon Request Upon Request Upon Request | Negotiable | ||
| 1st Floor | 19,132 SF | Negotiable | Upon Request Upon Request Upon Request Upon Request Upon Request Upon Request | Triple Net (NNN) | ||
| 1st Floor, Ste #8846 | 1,600 SF | Negotiable | Upon Request Upon Request Upon Request Upon Request Upon Request Upon Request | Negotiable |
Sunland Blvd - 1st Floor
- Fully Built-Out as Standard Retail Space
- Space is an outparcel at this property
Sunland Blvd - 1st Floor
- Space is an outparcel at this property
10455-10515 Sunland Blvd - 1st Floor
- Fully Built-Out as Standard Retail Space
- Located in-line with other retail
- Anchor Space
10455-10515 Sunland Blvd - 1st Floor
- Lease rate does not include utilities, property expenses or building services
- Fully Built-Out as Standard Retail Space
- Located in-line with other retail
10455-10515 Sunland Blvd - 1st Floor - Ste #8846
- Fully Built-Out as Standard Retail Space
- Located in-line with other retail
Rent Types
The rent amount and type that the tenant (lessee) will be responsible to pay to the landlord (lessor) throughout the lease term is negotiated prior to both parties signing a lease agreement. The rent type will vary depending upon the services provided. For example, triple net rents are typically lower than full service rents due to additional expenses the tenant is required to pay in addition to the base rent. Contact the listing broker for a full understanding of any associated costs or additional expenses for each rent type.
1. Full Service: A rental rate that includes normal building standard services as provided by the landlord within a base year rental.
2. Double Net (NN): Tenant pays for only two of the building expenses; the landlord and tenant determine the specific expenses prior to signing the lease agreement.
3. Triple Net (NNN): A lease in which the tenant is responsible for all expenses associated with their proportional share of occupancy of the building.
4. Modified Gross: Modified Gross is a general type of lease rate where typically the tenant will be responsible for their proportional share of one or more of the expenses. The landlord will pay the remaining expenses. See the below list of common Modified Gross rental rate structures: 4. Plus All Utilities: A type of Modified Gross Lease where the tenant is responsible for their proportional share of utilities in addition to the rent. 4. Plus Cleaning: A type of Modified Gross Lease where the tenant is responsible for their proportional share of cleaning in addition to the rent. 4. Plus Electric: A type of Modified Gross Lease where the tenant is responsible for their proportional share of the electrical cost in addition to the rent. 4. Plus Electric & Cleaning: A type of Modified Gross Lease where the tenant is responsible for their proportional share of the electrical and cleaning cost in addition to the rent. 4. Plus Utilities and Char: A type of Modified Gross Lease where the tenant is responsible for their proportional share of the utilities and cleaning cost in addition to the rent. 4. Industrial Gross: A type of Modified Gross lease where the tenant pays one or more of the expenses in addition to the rent. The landlord and tenant determine these prior to signing the lease agreement.
5. Tenant Electric: The landlord pays for all services and the tenant is responsible for their usage of lights and electrical outlets in the space they occupy.
6. Negotiable or Upon Request: Used when the leasing contact does not provide the rent or service type.
7. TBD: To be determined; used for buildings for which no rent or service type is known, commonly utilized when the buildings are not yet built.
Select Tenants at Sunhill Marketplace
- Tenant
- Description
- US Locations
- Reach
- AltaMed
- Health Care and Social Assistance
- 1
- -
- Jump Club
- Arts, Entertainment, and Recreation
- 1
- -
- Ralphs
- Supermarket
- 251
- National
- Ross Dress for Less
- Discount Store
- 2,195
- International
| Tenant | Description | US Locations | Reach |
| AltaMed | Health Care and Social Assistance | 1 | - |
| Jump Club | Arts, Entertainment, and Recreation | 1 | - |
| Ralphs | Supermarket | 251 | National |
| Ross Dress for Less | Discount Store | 2,195 | International |
Property Facts
About the Property
Sunhill Marketplace offers a premier retail leasing opportunity in Sunland, California. Anchored by Ralphs for over 50 years, this recently remodeled shopping center provides outstanding visibility and accessibility, with direct on/off ramps to Sunland Boulevard and prime freeway exposure. The center features a mix of national and regional tenants, including Ross Dress for Less and AltaMed, creating a strong draw for daily traffic. Available spaces range from small shop units to large anchor spaces, accommodating a variety of retail concepts. The property includes a new pylon sign for enhanced branding and benefits from a densely populated trade area with strong demographics. With its strategic location, ample parking, and established tenant mix, Sunhill Marketplace is an ideal choice for retailers seeking a high-traffic, freeway-visible location in the San Fernando Valley.
- Pylon Sign
- Restaurant
- Signage
- Signalized Intersection
Nearby Major Retailers
Presented by
Sunhill Marketplace | 10455 Sunland Blvd
Hmm, there seems to have been an error sending your message. Please try again.
Thanks! Your message was sent.


